
Sign up to receive updates about new model homes, new villages, all of latest news and events happening here at Lakewood Ranch.
Single-Family Home
Additional Details: 1 Story, 3 Garage
Village: Star Farms
Builder: Perry Homes
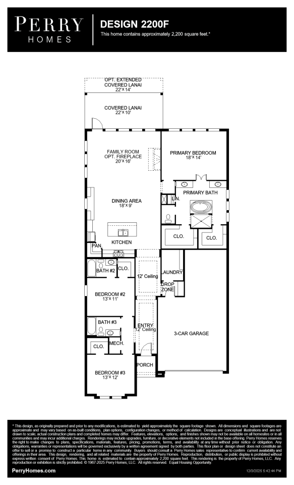
A welcoming front porch opens into an extended entryway with a 12-foot tray ceiling. Two secondary bedrooms are off the main hallway and each feature a private bathroom and walk-in closet. As you enter into the kitchen you are greeted by an island with built-in seating and a walk-in pantry. The dining area flows into the open family room which is embraced by two walls of windows that overlook the backyard covered lanai. The primary bedroom offers in plenty of natural light from its wall of windows. French doors open into the primary bathroom which boasts dual vanities, a garden tub, glass enclosed shower, and two walk-in closets. The laundry room is located in the central part of the home next to the drop zone and three-car garage.
Sign up to receive updates about new model homes, new villages, and all of the latest news and events happening here at Lakewood Ranch.
Downloads
Community Magazine Community Map Compare Villages LWR Activities Guide Parks & Trails Map Rental OptionsOther Links
About The Developer Careers FAQs Media & Press Inquiries Realtor Resources Resident Website Stewardship DistrictInformation Center on Main Street
8131 Lakewood Main Street,Download the MyLWR App
©2026 Lakewood Ranch. All Rights Reserved. Privacy Policy
